대전 도룡동 스마트시티 5단지
페이지 정보

본문
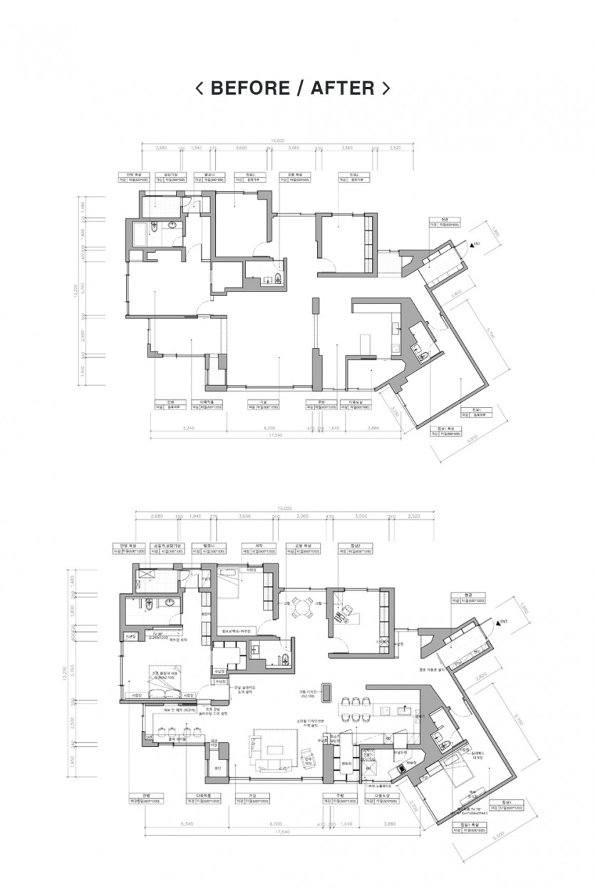
■ 공사명 : 대전 도룡동 스마트시티 5단지
■ 면적 : 224㎡ (68PY)
■ 설계 및 디자인 : 더홈인테리어
■ 공사 기간 : 2024년 06월 24일 ~ 2024년 08월 21일
■ 시공 : 더홈인테리어
■ 주요 공사 :
▷철거공사 - 내부 철거, 욕실 철거
▷전기공사 - 전등 전열 배선공사, 스위치 콘센트 교체, 전등기구 설치
▷목공사 - 현관,기타 벽 천장 목공 작업
▷페인트시공
▷타일공사 - 현관 바닥, 주방 면, 공용욕실, 안방욕실,거실벽면
▷욕실공사 - 타일공사, 위생기구, 수납장, 거울, 천정돔, 액세서리 설치
▷가구 공사 - 현관 수납장, 주방가구, 안방 붙박이장, 하부 서랍장, 침실
The-home 내 모든 이미지 및 디자인은 저작권 법에 의해 무단사용 또는 배포시 형사처벌의 책임을 물을 수 있습니다.
시공 before & after 사진이나 더 많은 포트폴리오가 궁금하시다면 블로그에 방문해주세요!
- 이전글세종시 가락마을 10단지 24.11.15
- 다음글대전 문지동 효성해링턴플레이스 1단지 24.09.11
댓글목록
등록된 댓글이 없습니다.
