대전 둔산동 청솔아파트 8동
페이지 정보

본문
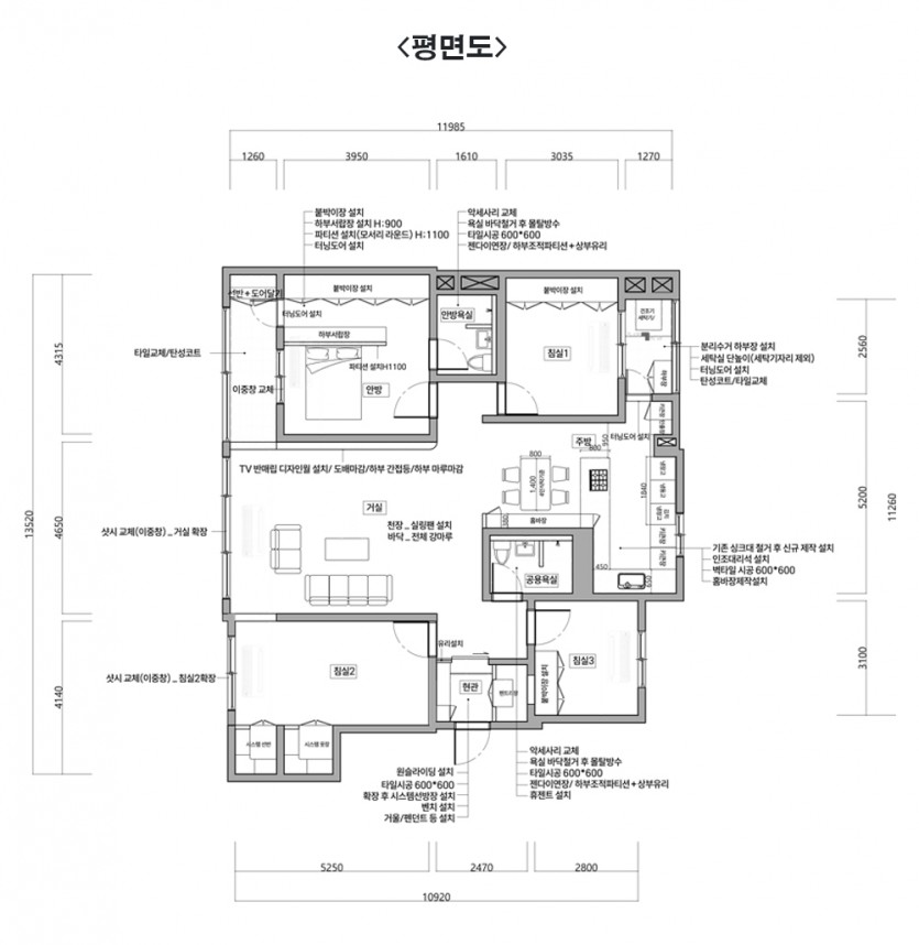
■ 면적 : 145㎡ (44PY)
■ 설계 및 디자인 : 더홈 인테리어
■ 공사 기간 : 2025년 04월 07일 ~ 2025년 05월 16일
■ 시공 : 더홈 인테리어
■ 주요 공사 :
▷철거공사 - 내부 철거, 욕실 철거
▷전기공사 - 전등 전열 배선공사, 스위치 콘센트 교체, 전등기구 설치
▷목공사 - 간접등박스 및 기타, 목공 작업
▷도배공사 - 전체 실크벽지 시공
▷타일공사 - 현관 바닥, 주방 벽, 공용욕실, 안방욕실
▷욕실공사 - 타일공사, 위생기구, 수납장, 거울, 악세서리 설치
▷가구공사 - 현관 수납장, 주방가구,주방홈바장,붙박이장,하부서랍장
The-home 내 모든 이미지 및 디자인은 저작권 법에 의해 무단사용 또는 배포시 형사처벌의 책임을 물을 수 있습니다.
시공 before & after 사진이나 더 많은 포트폴리오가 궁금하시다면 블로그에 방문해주세요!
- 이전글세종 범지기마을 4단지 25.07.08
- 다음글세종 가락마을 7단지 25.06.13
댓글목록
등록된 댓글이 없습니다.
