PORTFOLIO

CS Center

tel. 042-532-0686

am 9:00 ~ pm 6:00

토,일,공휴일은 휴무입니다.

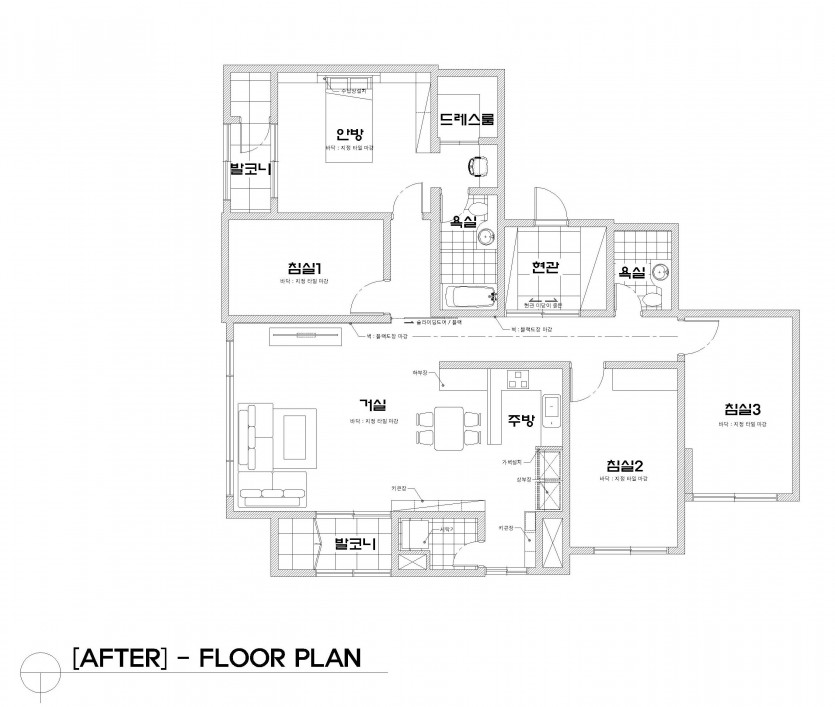
주거공간

상대동 트리풀시티 9단지

페이지 정보

profile_image
작성자 The HOME
댓글 0건 조회 2,515회 작성일 17-04-21 16:47

본문



댓글목록

등록된 댓글이 없습니다.